Your 70 sqm Granny Flat Exemption Journey – Jan 2026 Newsletter

Your 70 sqm Granny Flat Exemption Journey 🏠

ECOPOD HOMES

Your 70 m2 Granny Flat Exemption Journey — Simple, Predictable, and Cost Effective

Ecopod Homes Logo

New Zealand's 70 m2 Building Consent Exemption is a genuine step forward for homeowners. It creates a more simple, predictable, and cost-effective way to add a small home — without the delays and cost of a full building consent, when the exemption criteria are met.

The exemption is designed to empower owners. You stay in control, the process is streamlined, and the outcome is a fully compliant, permanent home built to Building Code standards. Ecopod Homes supports you where needed — offering a service that brings together design, materials, construction, and the technical steps required under the exemption.

What the Exemption Covers

  • No Building Consent (BC)
  • Building consent is not required if the project meets all Schedule 1 conditions:
  • Detached building
  • Up to 70 m2
  • Designed and built by licensed professionals
  • Full Building Code compliance
  • Mandatory PIM
  • Pre-build and post-build council notifications
  • Resource Consent (RC) may still be required
  • District plan rules still apply. Some sites need an RC due to setbacks, hazards, overlays, or special zones.
  • PIM's - Councils must issue within 10 working days
  • A statutory timeframe that gives owners a predictable checkpoint before construction begins.

Your Responsibilities (With Ecopod Homes Offering a Complete Service)

The exemption keeps homeowners in the driver's seat. You are responsible for ensuring your project qualifies, meets planning rules, uses licensed professionals, and follows the required notifications.

Ecopod Homes offers a complete service that includes:

  • Preparing the required documentation
  • Coordinating licensed trades
  • Supplying the materials
  • Constructing your Ecopod Home
  • Managing the exemption steps
  • Assembling your compliance pack

You choose the level of involvement you want. We provide the service that keeps the process simple, predictable, and well-managed.

Your Ecopod Homes Customer Journey

1. Understanding Your Needs

We begin with a conversation about how you plan to use your Ecopod Home. A site assessment then checks whether your site qualifies for the exemption and whether an RC is required.

2. Choosing Your Design (Default Path)

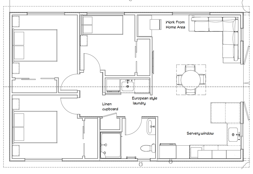
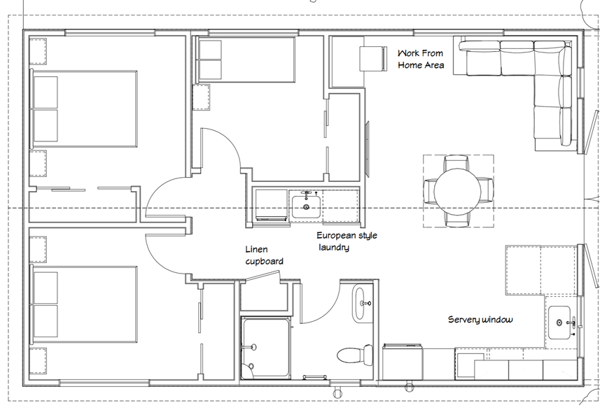
To keep the process simple and cost-effective, most customers start by selecting one of our pre-engineered Ecopod Home designs. These models are already optimised for the 70 m2 exemption and meet all Building Code requirements.

We offer a range of layouts and styles, and you can choose the one that best fits your needs.

Options and Customisation: We offer layout adjustments, finish upgrades, functional variations, and bespoke design elements. Customisation is available as a paid design service, and we'll guide you through what's possible under the exemption.

Typical timeframe: 1–2 weeks for design completion.

3. Transparent Pricing

You receive a clear, fixed proposal covering the Ecopod Home structure, foundations, services, delivery, installation, and any upgrades or customisation you've selected.

Typical timeframe: Variations priced within several days.

4. Final Refinements & Contract Signing

Once you approve the design and pricing, we prepare your build contract and help you complete the exemption steps — PIM preparation, notifications, and long-lead orders.

5. PIM Issued — Construction Begins

Councils must return PIM's within 10 working days. The PIM is a key part of the exemption pathway. It provides both you and Ecopod Home with a clear summary of the site-specific factors that affect your build, including natural hazards, infrastructure and service connections, planning considerations, whether a Resource Consent is required, and any council conditions that must be addressed before construction.

Once the PIM is issued, construction can begin with confidence, knowing the project aligns with the exemption and the site's requirements.

6. Build Phase — Around 10 Weeks

Your Ecopod Home is built by licensed professionals to full Building Code standards. Construction, fitout, and delivery preparation typically take around 10 weeks.

7. Delivery, Installation & Completion

Your Ecopod Home is transported, installed, connected, and finished to specification. You ensure site readiness; we coordinate the rest. We then help you submit the post-build notification and hand over your Compliance Pack.

8. Your Compliance Pack

You receive a complete record of your build, including final plans, Records and Certificates of Work, electrical and gas certificates, as-built drawings, PIM, notifications, warranties, and maintenance guide. This becomes your long-term assurance file for insurance and resale.