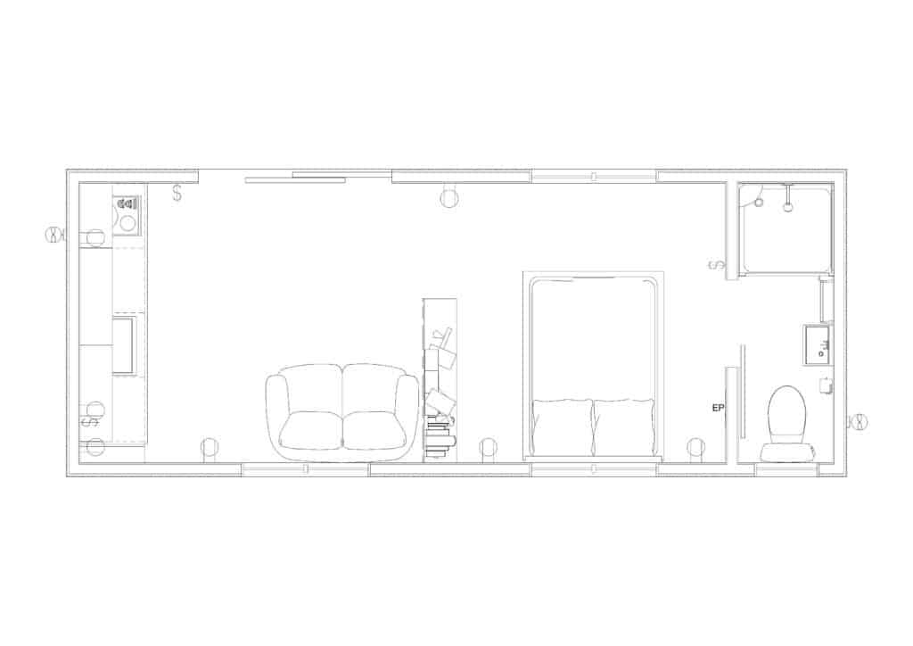
Eco 70
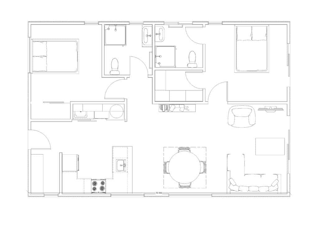
Eco 7010.69 x 6.8 With 3 large bedrooms, it’s perfect for family living or as a high-performing rental investment. This turnkey home comes complete with premium features making it ready to move in or rent out from day one. Every detail has been considered to deliver comfort, style and functionality. 70 (net)311 From $249,000* *Incl. […]










